• <li id="s0sss"></li>
  • <li id="s0sss"><tt id="s0sss"></tt></li>
  • <li id="s0sss"><tt id="s0sss"></tt></li><tt id="s0sss"></tt>
  • <li id="s0sss"><table id="s0sss"></table></li>
    深圳市博揚智能裝備有限公司 自動化系統集成商及解決方案提供商
    全國服務熱線
    0755-26993877
    行業動態
    您的位置: 首頁 > 新聞中心 > 行業動態
    .
    聯系我們

    http://www.shunliao.com.cn

    地址:深圳市寶安區新安街道67區甲岸科技園1號廠房1區5樓
    手機:15012713703

    咨詢熱線0755-26993877

    無方向過電流保護方案,依賴于電壓的過電流保護功能

    發布時間:2023-05-11 17:49:41人氣:

    20221229113151.png

     一、電流保護


     電流保護方案集成到電源系統設計中,以保護電源系統組件免受電流和短路電流的過度消耗。如果未在安全時間范圍內清除,電機等許多不同的電力系統組件可能會出現過多的過電流,從而造成危險。


     短路電流是發生在電路中并沿著具有低阻抗(幾乎為零)的路徑流動的不良電流,會導致嚴重的危險。有不同類型的電流保護方案,例如過電流、欠流和相序保護。然而,過電流保護也被細分為其他類別,例如非方向性過電流、方向性過電流和電壓相關過電流。


     過電流保護遵循19條定義明確的時間特性曲線,這些曲線將跳閘角之前的時間延遲定義為電流的函數。曲線按標準分為IEC和ANSI,其中最受歡迎的是定時限曲線(DT)、極長反時限(ET)、超長反時限曲線和普通反時限曲線。


     二、無方向性過電流


     無方向過電流是一種保護方案,旨在保護電力系統設備免受過電流和短路電流的影響,無論電流的流動方向如何。


     過電流保護功能利用不同階段進行報警和跳閘。它由三個階段組成,低階段、高階段和瞬時階段。低段是機組發出報警信號的階段,高段是通常用于過電流故障跳閘的階段,最后是瞬時階段用于短路電流跳閘的階段。在現代數字式保護繼電器中,每一級都有自己獨特的設置,包括時間特性曲線的選擇。


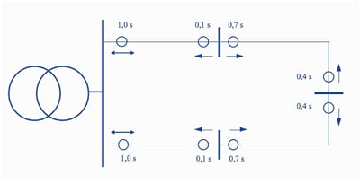
     三、定向過電流


     方向性過電流是一種保護方案,開發用于對沿預定方向流動的所需過電流值進行操作。它通常用于環形配置和單電源的電力系統,以保護能量流向取決于故障位置的所有饋線。在具有并聯饋電變壓器的電力系統中也很常見。

    20221229113151.png

     四、依賴于電壓的過電流保護


     電壓相關過電流保護是一種在操作上與無方向過電流保護非常相似的保護方案,不同之處在于啟動電流取決于工作電壓。換句話說,即使達到設定電流,該功能也不會發送任何信號,除非電壓也達到設定值。電壓相關的過電流保護通常用于發電機保護。


     電流保護功能有多種,但在本文中,我們重點介紹了三種最常見的過電流保護功能,以使讀者熟悉它們的基本工作原理。無方向性過電流雖然都綁定在同一時間特性曲線組上,但它是一種保護功能,用于保護電力系統元件免受在電力系統任何方向流動的過電流和短路電流的影響。開發了方向性過電流保護功能,以保護電力系統免受沿已知方向的過大電流的影響,并使用電壓相關過電流保護來保護處于預定電壓水平的設備。

    推薦資訊

  • <li id="s0sss"></li>
  • <li id="s0sss"><tt id="s0sss"></tt></li>
  • <li id="s0sss"><tt id="s0sss"></tt></li><tt id="s0sss"></tt>
  • <li id="s0sss"><table id="s0sss"></table></li>
    日韩有码av 封开县| 闽侯县| 吴忠市| 方城县| 五河县| 新晃| 福州市| 福建省| 玉溪市| 河南省| 河北省| 石泉县| 盖州市| 赤水市| 彭州市| 来凤县| 永年县| 北流市| 抚宁县| 扶沟县| 河津市| 兴安盟| 桦川县| 望江县| 县级市| 高平市| 丁青县| 招远市| 祁门县| 黄山市| 鄄城县| 奈曼旗| 通辽市| 岳阳县| 镇宁| 建阳市| 邵武市| 蓬安县| 北海市| 英山县| 台东县| http://444 http://444 http://444