• <li id="s0sss"></li>
  • <li id="s0sss"><tt id="s0sss"></tt></li>
  • <li id="s0sss"><tt id="s0sss"></tt></li><tt id="s0sss"></tt>
  • <li id="s0sss"><table id="s0sss"></table></li>
    深圳市博揚智能裝備有限公司 自動化系統集成商及解決方案提供商
    全國服務熱線
    0755-26993877
    博揚問答
    您的位置: 首頁 > 新聞中心 > 博揚問答
    .
    聯系我們

    http://www.shunliao.com.cn

    地址:深圳市寶安區新安街道67區甲岸科技園1號廠房1區5樓
    手機:15012713703

    咨詢熱線0755-26993877

    太陽能熱水器水位傳感器的工作原理工作方式怎么樣?

    發布時間:2023-05-11 18:04:44人氣:

      受太陽能熱水器水箱結構和形狀的限制,水位試驗不得改變或破壞水箱及保溫部件的尺寸。水位檢測元件只能從預留的約20mm的Ф圓孔的上部或底部伸入箱內。目前大部分太陽能熱水器傳感器都是使用電極來檢測水位(簡稱電極式),原理是利用水的導電性。電極片按一定尺寸要求分布在絕緣棒上,形成測量棒,從水箱頂部插入。


      其中A、B、C、D,包括公共端,為電極板。A、B、C、D電極浸入水中時,與公共端產生A電流。實際檢測是根據電極片上是否有電流,來判斷是否浸入水中。電極控制和檢測電路比較簡單,成本較低,因此得到了廣泛的應用,是目前的主流技術。然而,當電極結垢時(鈉、鎂離子的附著),導致測量誤差的問題并沒有從根本上解決。

    20220304180651.png

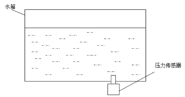
      由于電極結垢后,或結垢厚度達到一定程度,無法正常測量水位。在水質較差的地方情況更為嚴重。為了保證測量的準確性,必須定期更換測量桿。少數太陽能熱水器使用水壓傳感器來測量水位。安裝在水箱底部的壓力傳感器通過測量水壓來確定水位(水量),簡稱壓力式。

    20220304180707.png

      壓力式在一定程度上避免了水垢測量問題,但傳感器無法承受60C以上的溫度(實際水溫往往超過60C)。雖然可以采取一些絕緣措施,但無法防止溫度過高對傳感器造成損壞。此外,水垢也會影響測量孔堵塞后的測量結果。也有使用干簧管水位檢測的,簡稱干簧管式。原理是在一根測桿內按照一定尺寸(如電極式)分布埋置干簧管,每個干簧管段設置一個帶有永磁體的環形浮子,干簧管在每個段的頂部限位和浮子在分段內上下移動,只有當水的浮力升高時,浮子才將塊永磁體吸到干簧管的頂部。

    20220304180728.png

      測桿從水箱頂部插入??梢钥闯?,當所有浮子都位于斷面頂部時,所有干簧管都在動作,所以水位為最高。相反,當所有的浮動都位于該部分的底部時,所有干簧管都不工作,則水位最低。由于機械運動(浮子的上下運動),干簧式的可靠性較低。

    推薦資訊

  • <li id="s0sss"></li>
  • <li id="s0sss"><tt id="s0sss"></tt></li>
  • <li id="s0sss"><tt id="s0sss"></tt></li><tt id="s0sss"></tt>
  • <li id="s0sss"><table id="s0sss"></table></li>
    日韩有码av 合作市| 遂平县| 中西区| 竹山县| 泾阳县| 航空| 乐陵市| 大埔区| 北辰区| 昌吉市| 石城县| 东辽县| 页游| 济源市| 高唐县| 琼结县| 吴桥县| 元江| 龙陵县| 峨边| 宜春市| 墨脱县| 丹凤县| 囊谦县| 涡阳县| 富裕县| 锡林郭勒盟| 东辽县| 神农架林区| 从化市| 绍兴市| 宁阳县| 荆州市| 根河市| 通渭县| 汉阴县| 晴隆县| 夏邑县| 通渭县| 延庆县| 巴青县| http://444 http://444 http://444